NEFF V68YYX4B0

Prekės kodas: 4242004286943

Turimas kiekis: Prekės pristatymas 1-3 dienos

€2,49500 su PVM
Radote šią prekę pigiau? Nurodykite kur radote ir pradėkime derėtis
Gamintojas: NEFF

Savybės:

  • „Twist Pad Flex“®: paslankus sukamasis ratukas lengvam kaitlentės valdymui.
  • „Flex Design“: pritaikykite kaitlentę prie savo stiliaus su atskirai pasirenkamais „Twist Pad Flex®“ ir šoninės apdailos elementais.
  • Intuityvios „Flex Zones“: statykite savo indą! Dydis, forma ir vieta atpažįstama akimirksniu.
  • Automatinis oro jutiklis – pagal aplinkybes virtuvėje nuolat reguliuoja ištraukimo greitį.
  • Išplėstinis kepimo jutiklis: stebėkite temperatūrą, kad patiekalas neprisviltų. 

Techniniai duomenys:

Bendras

  • Pagrindinė produkto spalva Matinė juoda
  • Plotis 80 cm
  • Bendras kaitviečių skaičius, kurios gali būti naudojamos vienu metu 4
  • Šildymo elementų matmenys 4 x (20,0 x 23,0 cm)
  • Šildymo elementų galia 4 x 2.2 (3.7) kW
  • Rėmo tipas Flex Design keičiamos šoninės apdailos detalės (pasirinkite mėgstamiausią iš 4 spalvų)
  • Kaitrinių kaitviečių skaičius 0
  • Indukcinių kaitviečių skaičius 4
  • Puodų Boost funkcija Visos kepimo zonos
  • Valdymo nustatymo ir signalizavimo įtaisų tipas Netaikoma
  • Maksimalus ištraukiamo oro srautas 500 m³/h
  • Oro ištraukimas intensyviu režimu 622 m³/h
  • Maksimalus ištraukiamo oro srautas, recirkuliacija 499 m³/h
  • Recirkuliacinis oro ištraukimas intensyviu režimu 595.0 m³/h
  • Garso stiprumas esant maksimaliam greičiui (2010/30/EC) 69 dB
  • Garso stiprumo padidinimas (2010/30/EC) 74 dB
  • Triukšmo lygis 69 dB(A) re 1pW
  • Kaitlentės sunaudojamos energijos kiekis 185.0 Wh/kg
  • Integruoti priedai 1 x „Clean Air Plus“ kvapų filtras

Dydis ir svoris

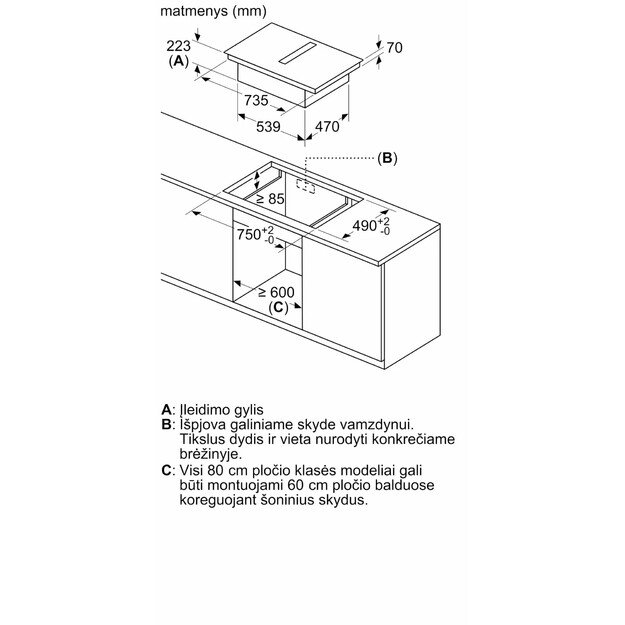
  • Gaminio išmatavimai 223x834x527 mm
  • Gaminio su pakuote išmatavimai (AxPxG) 430x940x660 mm
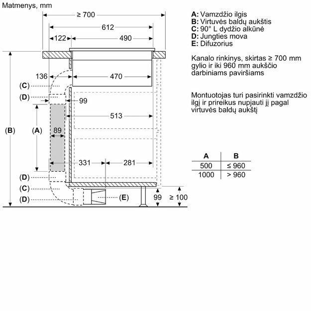
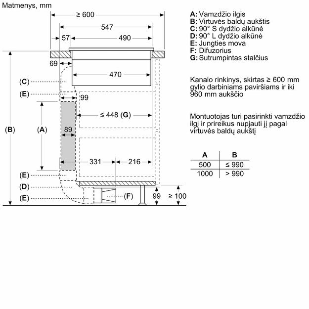
  • Minimalus montavimo nišos aukštis 490 mm
  • Maksimalus montavimo nišos aukštis 500 mm
  • Mažiausias montavimo angos plotis 750 mm
  • Didžiausias montavimo angos plotis 750 mm
  • Montavimo gylis 223 mm
  • Prietaiso aukštis virš stalviršio 6.0 mm

Techninės specifikacijos

  • Prijungimo galia 7400 W
  • Įtampa 220-240/380-415 V
  • Elektros laido ilgis 110 cm
  • Kištuko tipas Nėra kištuko (elektros pajungimas atliekamas elektriko)
  • Pridedami naudotojo vadovai [DA, DE, FI, NO, SV]

Patogi kaitlentė

  • Valdymas TwistPad Flex
  • Galios lygių skaičius 17 lygių
  • Maisto ruošimo vietos lankstumas 2 lanksčios indukcinės maisto ruošimo vietos
  • powerBoost Yra
  • Išvenkite įbrėžimų ant stiklo keramikos su GlassProtect Ne
  • activeLight Plus Ne
  • Frying sensor Yra
  • Infraraudonųjų spindulių kepimo jutiklis Ne
  • paruoštas cookingSensor Plus (jutiklis parduodamas atskirai) Ne
  • Powermove Ne
  • Nustatymų perkėlimas perkeliant puodą Yra
  • Quick Start Yra
  • Šilumos palaikymo funkcijaNe
  • Laikmatis Taip
  • Laikmatis išjungiamas, Skaičiavimo laikmatis (galima pasirinkti vietoj išjungimo laikmačio)

Patogus gartraukis

  • Itin tylus - EcoSilence Drive Yra
  • Intensyvus režimas Yra
  • Atidėtas išsijungimas Yra
  • Filtro pakeitimo priminimas Taip
  • Greičių lygių skaičius17 etapų + 2 intensyvūs

Ryšys

  • Prijungti prietaisai su Home Connect Yra
  • Home Connect funkcijos iService Remote, Nuotolinis stebėjimas

Saugumas

  • Saugos įtaisas Užraktas nuo vaikų, Neaktyvumo laiko išjungimas, Keptuvės / puodo atpažinimo išjungimas, Išsiliejimo atpažinimo išjungimas
  • Likusios šilumo indikatorius Atskiras 

Energijos efektyvumo etiketė: 

 

Daugiau informacijos gamintojo puslapyje 

Apie gamintoją:

Electrolux užsiima elektros prietaisų, skirtų naudotis virtuvėse ir lauke, taip pat įvairių valymo prietaisų gamyba. Įmonė pagrindinį dėmesį skiria naujovėms, kurios yra itin sumaniai projektuojamos, siekiant patenkinti visų klientų poreikius, būtent tai lemia, jog Electrolux yra pasaulio lyderis buities prietaisų gamybos srityje. 


 
 

Parašyti atsiliepimą
Rašyti
Skambinti